2+1 Tek Katlı PREFABRİK EV (Güncel kampanyalı fiyat için arayınız) ***15 GÜNDE TESLİM***

68 m2 Tek Katlı Plan

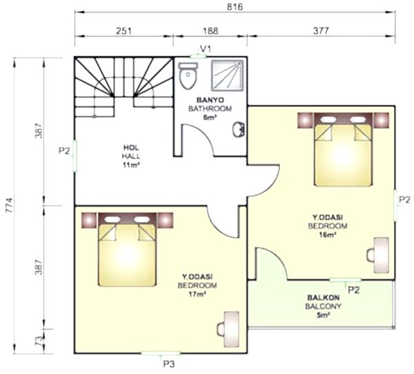
2+1 Dubleks 94 m2 ÇELİK EV (Güncel kampanyalı fiyat için arayınız) ***45 GÜNDE TESLİM***


25 Günde Teslim - Dublex Giriş Kat Planı

Dublex Üst Kat Planı

PREFABRİK KONUT TEKNİK ÖZELLİKLERİMİZ
| |||
| SİSTEMİN TANIMI | İmalatlar 80 kg/m² karyükü, 90 km/saat rüzgar hızı, birinci derece deprem şartları ve üç iklim bölgesi | ||
| Esas alınarak üretilmektedir. | |||
| Çelik Malzeme : ST 52 Galvaniz Çelik | |||
| Hesap Kriteri : TS 648, TS 498 , TS 11372 | |||
| Betopan : TSEN 634-2 | |||
| Cam Yünü : TS 901 , DIN 18165 | |||
| Taşyünü: | |||
| TAŞIYICI SİSTEM | Galvaniz Sac dan Rollform makinasıyla çekilen taşıyı H profiller ile, makas imalatında kullanılan Rollform makinasında çekilen galvaniz U profili binaların ana taşıyıcı iskeletini oluşturur.Makas ları birbire bağlamak ve yapıyı rijit hale getirmek için Rollform makinasında çekilmiş omega aşıklar kullanılır. | ||
| YAPISAL ÇELİK | Prefabrik bina malzeme kesit tayini Sap 2000 hesap yöntemiyle yapılar Auto CAD programında çizilip resimler halinde imalat verilir.Tüm taşıyıcı sistem Rollform makinasından çekilen özel H, C, ve U modelli Galvaniz profillerinden oluşur. | ||
| ÇATI KAPLAMA | KAPLAMA | Boyalı Galvaniz Sac | |
| MAKAS | Makaslar Statik hesap a göre özel bükümlü GALVANİZ sacdır. | ||
| AŞIKLAR | Rolform Makinasında Çekilmiş Galvaniz sacdan yapılır. | ||
| SAÇAKLAR | 30 cm genişliğinde özel bükümlü boyalı galvaniz sac ile kaplanır. | ||
| DERE | Pvc Kare yağmur dereleri ve inişleri | ||
| ASMA TAVAN | KAPLAMA | Normal Mekan | 12 mm Kalınlığında Alçıpan |
| Islak Mekan | 8 mm Kalınlığında Betopan | ||
| BİRLEŞİM ELEMANLARI | Birleşme elemanları elektrostatik boyalı galvaniz sac | ||
| İZOLASYON | 80 mm Kalınlığında Rulo camyünü | ||
| DIŞ DUVARLAR H:2500 mm Kalınlık :100 mm | DIŞ YÜZEY | 8 mm Kalınlığında Çimentolu Yonga Levha (Betopan) | |
| İÇ YÜZEY | 8 mm Kalınlığında Çimentolu Yonga Levha (Betopan) | ||
| BİRLEŞİM ELEMANLARI | Galvaniz Rollform makinası ile tek malzemeden çekilir. | ||
| İZOLASYON | 80 mm Kalınlığında 16 Dansti B:1 Yanmaz Polistren Köpük | ||
| İÇ DUVARLARH:2500 mm Kalınlık : 60 mm | DIŞ YÜZEY | 8 mm Kalınlığında Çimentolu Yonga Levha (Betopan) | |
| İÇ YÜZEY | 8 mm Kalınlığında Çimentolu Yonga Levha (Betopan) | ||
| BİRLEŞİM ELEMANLARI | Galvaniz Rollform makinası ile tek malzemeden çekilir. | ||
| İZOLASYON | 40 mm Kalınlığında 16 Dansti B:1 Yanmaz Polistren Köpük | ||
| DUVAR BİRLEŞİM | BİRLEŞİM ELEMANLARI | Birleşim elemanları Rollform mkinesinde çekilmiş özel U ve H profilleri GALVANİZ sac malzemeden bükülerek özel kenet sistemi ile birleştirilir. Kenarlarda radius oluştuğundan terleme sonucu paslanma olmaz. | |
| KAPILAR | İÇ KAPILAR | 80×200 ebatında metal kasalı olup kanatları çift taraflı Göbekli AMERİKAN KAPI Yapılmaktadır. | |
| DIŞ KAPILAR | Çelik Konut Kapısı | ||
| PENCERELER | PENCERE | 120*120 160*120 Ölçülerinde PVC Pencere ER PEN Marka 7000 Serisi | |
| PENCERE KASASI | 1,2 mm kalınlığında soğuk şekillenmiş galvaniz sacdan oluşturulur. | ||
| VASİSTAS | 50/120 cm ve 60*40 cm. ebatlarında PVC doğrama | ||
| CAM | PENCERE | 4+9+4 mm ısı kontrol kaplamalı çift cam | |
| BOYA | DIŞ CEPHE | Çift kat akrilik dış cephe boyası. DYO Marka | |
| METAL AKSAM | Çift kat astar ve çift kat yağlı boya. | ||
| İÇ CEPHE | Çift kat plastik boya. DYO Marka | ||
| TAVAN | Çift kat plastik boya. DYO Marka | ||
| ELEKTRİK TESİSATI(SIVA ALTI) | KABLO | 3*2,5 Nym Hes Marka Kablo Kullanılır. | |
| PRİZ ve DÜĞMELER | VİKO markadır. | ||
| AYDINLATMA | 2*40 Florasan armatürdür . PELSAN TMS | ||
| WC BANYO | Yuvarlak Glop aydınlatma kullanılır | ||
| KAPI ÜSTÜ | Dış kapı üzeri Glop kullanılır | ||
| TEMİZ SU BORULARI | PCV Boru (FIRAT Plastik) | ||
| SIHHÎ TESİSAT | PİS SU BORULARI | PVC Boru (FIRAT Plastik) | |
| (SIVA ALTI) | VİTRİFİYELER | TSE’ li DOĞVİT Marka Malzeme Kullanılır. | |
| SU SAYACI | Alıcıya aittir. | ||
| ARAKAT | KARKAS | Özel Bükümlü Galvaniz Sacdan elde edilen kafes şeklinde panellerin birbirleriyle birleştirilmesinden oluşur | |
| ÜST KAPLAMA | 16 mm Kalınlığında Betopan | ||
| ASMA TAVAN | 12 mm Kalınlığında Alçıpan | ||
| İZOLASYON | 80mm Kalınlığında Cam Yün | ||
| TAŞIMA YÜKÜ | 250 kg/m² olarak hesaplanır | ||
| MERDİVEN | KARKAS | Kutu profillerden elde edilen taşıyıcı çelik iskelet yapılacaktır | |
| KAPLAMA | 16 mm Kalınlığında Betopan | ||
| BOYA | Çift kat astar ve çift kat yağlı boya | ||
| KORKULUK | Kutu profillerden yapılır | ||

EVSA ÇELİK EV VİLLA YAPI SİSTEMLERİ TEKNİK ÖZELLİKLERİ
1-) SİSTEM TANIMI:
Bölgesine ve projesine göre statik hesapları ve mimari dizaynı yapılmış ve proje verilerine göre:
(DIN EN 10326) standardında;
(S320GD+Z,+AZ) (Erdemir kalite no:1332)
Akma Sınırı : 3200 kg/cm²(320 N/mm2)
Çekme Dayanımı : 3900 kg/cm²(390 N/mm2)
(S350GD+Z,+AZ) (Erdemir kalite no:1335)
Akma Sınırı : 3500 kg/cm² (350 N/mm²)
Çekme Dayanımı : 4200kg/cm² ( 420 N/mm²)
olan çelik malzeme kullanılır.
Hafif Galvanize Sac özel ebatlı profiller ile ana taşıyıcı sistemleri imal edilen, tüm ileri kaba ve ince ürünleri ile birlikte tasarlanmış konut sistemlerimizi “ÇELİK KONUT SİSTEMLERİ” olarak adlandırmaktayız.
2-) TAŞIYICI SİSTEM ÜRETİM TEKNOLOJİSİ:
İmalat tam otomatik rollforming makinaları ile yapılmaktadır. Yapıyı oluşturan profiler: Continue profil hattı ile gerekli olan tüm formları oluşturup gerekli olan tesisat ve bağlantı boşluklarını tamamen bilgisayar kontrollü olarak açılır. İmalat ve montaj aşamasında kesinlikle kaynak kullanılmamaktadır. Birleşimler özel norma sahip civata ve/veya vidalar ile yapılmaktadır.
Yapının bulunduğu bölgeye göre gerekli sismik ve statik hesaplar, proje ve standartlarda belirlenen yük değerlerine göre, Sap2000, CFS, STA4CAD, BRICSCAD, HAYESCAD programları ile yapılmaktadır.
3-)ÇELİK KONUT SİSTEMİ , UYGUNLUK STANDARTLARI :
3-A) ÇELİK VE KONSTRÜKSİYON :
TS 11372: Çelik Yapılar – Hafif – Soğukta Şekil Verilmiş Profillerle Oluşturulan – Hesap Kuralları
TS 648: Çelik Yapıların Hesap ve Yapım Kuralları
TS 6793: Konutlar ve Kamu binalarında Kullanım ve yerleşim yükleri
TS 498: Yapı Elemanlarının Boyutlandırılmasında Alınacak Yüklerin Hesap Değerleri
TS 7046 : Yapıların Tasarımı İçin Esaslar
TS ENV 1993-1-2: (Eurocode 3) Çelik Yapıların tasarımı Bölüm 1-2:Genel kurallar- Yangına karşı yapısal tasarım
TS 4561 : Çelik Yapıların Plastik Teoriye Göre hesap Kuralları
TS ENV 1090-1: Çelik Yapı uygulanmaları –Bölüm1:Genel kurallar ve binalar için kurallar
TS ENV 1090-3: Çelik Yapı uygulamaları – Bölüm 3: Yüksek akma dayanımlı çelikler için ilave kurallar.
TS ENV1998-3 : Eurocode 8: Depreme dayanıklı yapıların Projelendirilmesi-Bölüm 1:Genel kurallar,sismik etkiler ve binalar için kurallar.
TS EN 10326: Sürekli sıcak daldırma ile kaplanmış Yapı Çeliğinden mamul şerit ve levhalar-teknik teslim şartları
TS EN 10327: Sürekli sıcak daldırma ile kaplanmış, soğuk şekillendirme amaçlı düşük karbonlu çeliklerden mamul şerit ve levhalar-teknik teslim şartları
TS EN 10162: Çelik profiller- Soğuk haddelenmiş- Teknik teslim şartları- Boyut ve kesit toleransları
3-B) YALITIM DEĞERLERİ(ISI-ENERJİ, AKUSTİK, SES, SU) :
TS 825: Binalarda Isı Yalıtım Kuralları
TS 901-1 EN 13162: Isı yalıtım mamülleri – Binalarda kullanılan – Fabrika yapımı mineral yün mamüller – özellikler
TS EN 12086: Isı yalıtım malzemeleri –Binalar için Su Buharı geçirgenlik Özelliklerinin tayini
DIN 4109 : Konutlarda istenilen akustik ses seviyesi
TS 2381-2 EN ISO 717-1 : Akustik – Yapılarda ve yapı elemanlarında ses yalıtımının değerlendirilmesi – Bölüm1: Hava ile yayılan sesin yalıtımı
TS 2381-2 EN ISO 717-2 : Akustik – Yapılarda ve yapı elemanlarında ses yalıtımının değerlendirilmesi – Bölüm2: Darbe sesi yalıtımı.
TS EN 29052-1: Akustik – Dinamik katılığın Tayini – Bölüm 1: Meskenlerde Esnek Döşeme altında Kullanılan Malzemeler.
TS 7316 EN 13163 : Isı yalıtım mamülleri-binalar için-fabrikasyon olarak imal edilen –genleştirilmiş polistren köpük-özellikler
TS EN 13500: Isı yalıtım malzemeleri- yapılarda kullanılan-mineral yün esaslı harici kompozit ısı yalıtım sistemleri(ETICS)-özellikler.
3-C) YANGIN DAYANIM STANDARTLARI :
DIN 4102: Yapı malzemelerinin ve yapı bileşenlerinin yangın davranışları
TS 1263: Yapı elemanlarının Yanmaya dayanıklılık Sınıfları ve Yanmaya dayanıklılık deney metodları
DIN 1365-1: Yangına dayanıklılık deneyleri-Yük taşıyıcı elemanlar için – Bölüm1: Duvarlar
DIN 1365-2: Yangına dayanıklılık deneyleri – Yük taşıyıcı elemanlar için – Bölüm2 :Döşemeler ve çatılar
TS EN 13501-1: Yapı mamülleri ve yapı elemanları, yangın sınıflandırması bölüm1:Yangın karşısındaki davranış deneylerinden elde edilen veriler kullanılarak sınıflandırma
3-D) BAĞLANTI VE MONTAJ ELEMANLARI STANDARTLARI:
TS EN 20898-7 : Bağlama elemanlarının mekanik özellikleri
TS 3611EN 20898-2: Bağlama elemanlarının mekanik özellikleri – Bölüm 2: Deney yükü Değerleri belirlenmiş somunlar—Normal Adımlı
3-E) DIŞ VE ARA BÖLME DUVAR STANDARTLARI :
TS EN 520 : Alçı levhalar – Tarifler, gerekler ve deney metotları
TS 1475: Alçı Bölme Duvar Levha ve Bileşenlerinin Yerlerine Konulması Kuralları
TS EN 12369-1: Ahşap esaslı levhalar – Yapısal amaçlı tasarım için karakteristik değerler – Bölüm 1: OSB, yonga levhalar ve lif levhalar
TS EN 300 : Yönlendirilmiş Lif Levhalar (YLL)- Tarifler, Sınıflandırma ve Özellikler
TS EN 12369-1: Ahşap esaslı levhalar – Yapısal amaçlı tasarım için karakteristik değerler – Bölüm 1: OSB, yonga levhalar ve lifli levhalar.
3-F) ELEKTRİK TESİSATI YÖNETMELİĞİ :
16 Haziran 2004 Tarih ve 25494 Sayılı Elektrik İç Tesisat Yönetmeliği
21 Ağustos 2001 tarih ve 24500 Sayılı Elektrik Tesislerin Topraklamalar Yönetmeliği.
3-G) GENEL YÖNETMELİKLER:
R.G.26.07.2002 / 24822 : Binaların yangından Korunması Hakkında Yönetmelik
ABYYHY 2007 : Afet Bölgelerinde Yapılacak yapılar hakkında Yönetmelik